2 Baugrundstücke – 16 Wohneinheiten – 1180 qm Wohnfläche
Eckdaten
- Art Baugrund für Mehrfamilienhäuser
- Lage 79215 Biederbach
- Preis auf Anfrage ja
- Grundstück ca. 1.100 m²
- Minimale Teilfläche 550
- Bezugstermin sofort
- Kurzfristig bebaubar ja
- Immobilien-ID 150567534
- Provision 5,95 %
Immobilie
Es liegt eine rechtskräftige Baugenehmigung für ein Mehrfamilienhaus auf Grundstück Nr. 1 mit folgenden Eckdaten vor:
– Wohnung 1 (UG2): 2 Zimmer, 70,57 qm Wohnfläche
– Wohnung 2 (UG2): 2 Zimmer 46,96 qm Wohnfläche
– Wohnung 3 (UG1): 2 Zimmer 99,31 qm Wohnfläche
– Wohnung 4 (UG1): 2 Zimmer 68,20 qm Wohnfläche
– Wohnung 5 (EG): 3 Zimmer 99,28 qm Wohnfläche
– Wohnung 6 (EG) 2 Zimmer 68,24 qm Wohnfläche
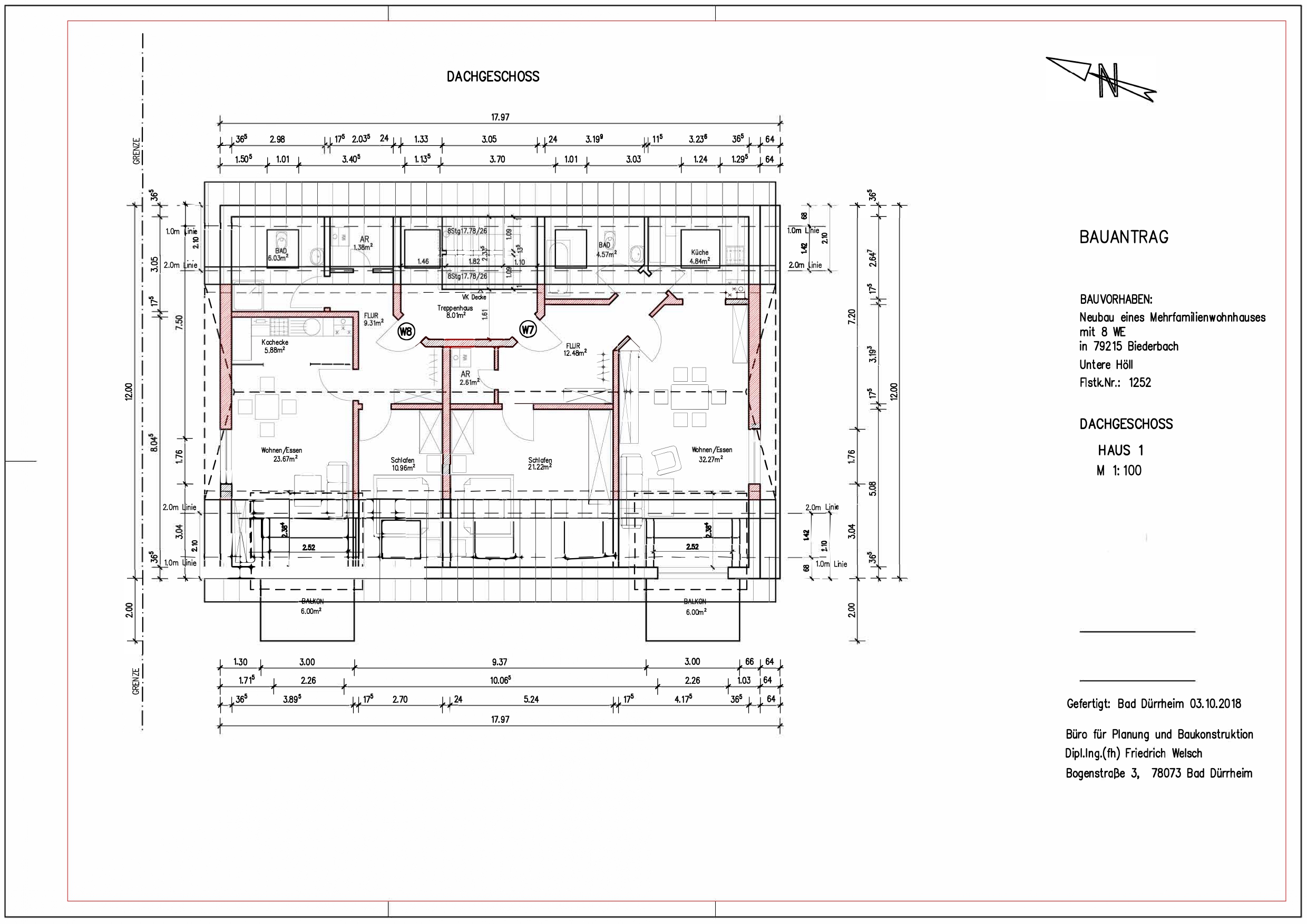
– Wohnung 7 (DG) 2 Zimmer 79,47 qm Wohnfläche
– Wohnung 8 (DG) 2 Zimmer 58,73 qm Wohnfläche
Summe: 590,76 qm Wohnfläche, 8 Stellplätze
Lage
Die Grundstücke befinden sich in ruhiger, naturnaher Lage in Biederbach – eingebettet in die sanften Hänge des Schwarzwalds. Von beiden Bauplätzen eröffnet sich ein unverbaubarer Blick ins Grüne und auf den angrenzenden Wald. Die Untere Höllstraße vereint idyllisches Wohnen mit guter Erreichbarkeit. Die Gemarkung Elzach ist nur ein Steinwurf entfernt, wodurch alle Güter des täglichen Bedarfs innerhalb 2 Fahrminuten zu erreichen sind.
Bebaubarkeit
Die beiden Grundstücke sind jeweils mit einem Mehrfamilienhaus mit insgesamt 8 Wohneinheiten und einer geplanten Wohnfläche von ca. 590 m² (1.180 qm Gesamtwohnfläche) projektiert. Für eines der beiden Häuser liegt bereits eine rechtskräftige Baugenehmigung einschließlich Teilbaufreigabe vor. Erste vorbereitende Maßnahmen wurden bereits durchgeführt – darunter die Hangsicherung durch eine Bodenvernagelung.
Sonstiges
Das Angebot umfasst zwei Baugrundstücke in aktuellem Baufortschritt. Die Grundstücke werden als Paket angeboten. Sollten Sie jedoch nur an einem der Grundstücke interessiert sein, freuen wir uns über Ihre individuelle Anfrage.
Grundrisse
Weitere Informationen
Rechtliches
Mit Abschluss eines notariell beurkundeten Kaufvertrags wird eine Käuferprovision in Höhe von 5,95 % des Kaufpreises inkl. gesetzlicher MwSt. fällig. Die Provision ist verdient und zahlbar mit Unterzeichnung des notariellen Kaufvertrags.
Herzlichen Dank für Ihre Anfrage.
Wir werden diese so schnell wie möglich bearbeiten.
